ПЕРИЛА ЛО 30.9Р-1 ограждения лестниц 5262-001-43044904

ПЕРИЛА ЛО 30.9Р-1 ограждения лестниц 5262-001-43044904
цена
3970 руб.
обновлено
31.05.2024
Данная цена товара неактуальна. Подборку предложений с актуальной ценой смотрите в разделе Лестницы
или
Добавьте в корзину
Наличие на складе:
не указано
Доставка:

Описание и технические характеристики

Производство стандартных стальных лестничных ограждений — перил марки ЛО 30.9Р-1 по ТУ 5262-001-43044904-2020, являющихся аналогом ограждения лестниц марки ЛО-14 по типовой серии 1.050.9-4.93 «Лестницы для многоэтажных общественных, административных и бытовых зданий и производственных зданий промышленных предприятий» (выпуск 3 «Стальные изделия»), разработанной ЦНИИпромзданий и введенной в действие в 1995 году, а также ограждений ЛО-14 по серии 1.450-1 вып.2, действовавшей с 1973 по 1995 год

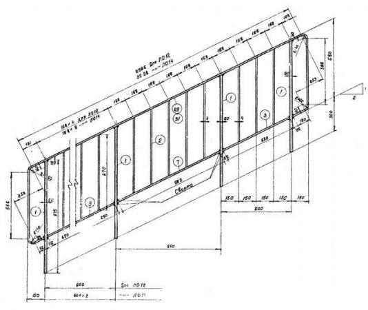
Размеры лестничного ограждения ЛО 30.9Р-1

Металлические ограждения лестничных маршей марки ЛО 30.9Р-1 изготавливаются по чертежам, разработанным на основании типовых чертежей 1.050.9-4.93.3-103 и 1.450-1.2-11:


Длина лестничного ограждения ЛО 30.9Р-1 в плане — 3000 мм
длина поручня — 3354 мм
высота стоек — 980 мм
количество стоек (с шагом 600 и 900 мм) — 5 шт.
высота решетчатого заполнения (с шагом 150 мм) — 680 мм
уклон — 1:2
угол наклона к горизонту — 26°34'




Конструкция лестничного ограждения ЛО 30.9Р-1


Каркасы и поручни перил выполняются из стальной полосы по ГОСТ 103 толщиной 4 мм и шириной 40 мм,
решетчатое заполнение — из стального круглого проката по ГОСТ 2590 диаметром 8 мм или гладкого прутка класса А-I (А240) по ГОСТ 5781 диаметром 8 мм (пруток МД-8×670-А240 по ГОСТ 34028),
стойки — из стальной прямоугольной трубы по ГОСТ 8645 сечением 40×25 мм.


Типовые стальные перила марки ЛО 30.9Р-1 по ТУ 5262-001-43044904-2020, как и перила ЛО-14 по серии 1.050.9-4.93.3, применяются в стандартных двухмаршевых лестничных клетках марок ЛК-33-15-2, ЛК-33-17-2, ЛК-33/42-15-2/3 и ЛК-33/42-17-2/3 и в трехмаршевых лестничных клетках (с лифтами) марок ЛКЛ-33/42-15-2/3 и ЛКЛ-33/42-17-2/3 по серии 1.050.9-4.93.0-1. Они устанавливаются на стандартные лестницы из накладных бетонных лестничных ступеней типа ЛС, ЛСВ, ЛСН и ЛСП по ГОСТ 8717, уложенных по стальным косоурам марки ЛК-11 по серии 1.050.9-4.93.3.

Ограждения ЛО 30.9Р-1 также могут устанавливаться на другие стандартные железобетонные лестничные марши по ГОСТ 9818 при высоте подъема марша hом = 1650 мм (высота этажа Hэ = 3,3 м):


ЛМП 57.11.17-5, ЛМП 60.11.17-5, ЛМП 57.11.17-5-3 и ЛМП 60.11.17-5-3 с накладными бетонными проступями типа 1ЛН и 2ЛН по серии 1.050.9-4.93 (выпуск 1), либо серии 1.050.1-3 (выпуск 1), действовавшей с 1991 по 1994 год и серии 1.050.1-2 (выпуск 1), действовавшей с 1984 по 1991 год;
ребристые лестничные марши марки ЛМ 165-115 по серии 1.150-КР-1 (выпуск 1);
лестничные марши ребристой конструкции с фризовыми ступенями марок 2ЛМФ 39.12.17-5, 2ЛМФ 39.14.17-5 и 2ЛМФ 39.15.17-5 с накладными проступями типа 1ЛН и 2ЛН по серии 1.251-4 (выпуск 1);
лестничные марши ребристой конструкции с фризовыми ступенями марок ЛМ-17.12, ЛМ-17.13 и ЛМ-17.15 с накладными проступями типа ЛН по серии 1.251-3 (выпуск 1), действовавшей с 1977 по 1984 год;
лестничные марши ребристой конструкции с фризовыми ступенями марок ЛМ 33.12, ЛМ 33.14 и ЛМ 33.15 с накладными проступями типа ЛН по серии 1.250-1 (выпуск 1), действовавшей с 1971 по 1977 год.
лестничные марш-площадки однокосоурные ребристой конструкции марки ЛМР 58.12.17-5Т, ЛМР 58.14.17-5Т и ЛМР 70.14.17-5Т по серии 1.258 КЛ-2 (выпуск 1-1);
лестничные марши с накладными мозаичными ступенями марки ЛМ 33-14 по серии ИИ-03-02 (альбом 30А)


Крепление лестничных ограждений

Монтаж типовых стальных ограждений лестниц к железобетонным лестничным маршам и ступеням лестничных клеток жилых зданий выполняется по рабочим чертежам серий 1.450-1 (выпуск 0) и 2.150-1 (выпуск 1).

При креплении ограждений сверху ступеней на расстоянии 140 мм от края сверлятся отверстия под стойки ограждения, в которые вставляются эти стойки, после чего отверстия бетонируются.

При креплении ограждений с торца, стойки ограждений лестничных маршей привариваются к закладным деталям, предусмотренным в железобетонных лестничных маршах или накладных ступенях, сварным швом длиной 100..120 мм.

Между собой лестничные ограждения связываются путем сварки с использованием металлических монтажных деталей

Контакты:

ООО ГРАН-Строй




похожие товары из категории Перила

Смотрите также Лестницы в Перми